 
  
Projects
London, UK
Sheraton Skyline, Qatar Airlines
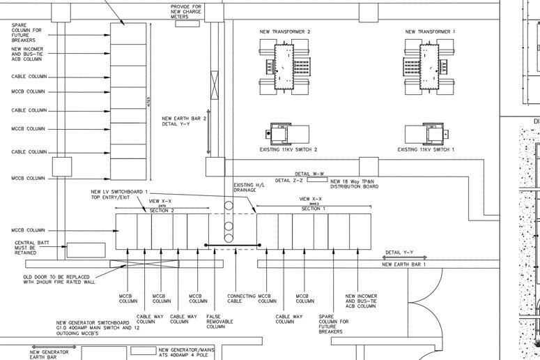
KIPO were appointed to carry out an electrical system replacement with the goal of mitigating client disruption.
Our services and solutions:
- Design for the replacement set out in carefully considered stages to minimise disruption 
- Delivered the operation while the Sheraton Skyline remained in full operation 
PROJECT DETAILS
Client: Qatar Airlines
Sector: Hotels and Leisure
“Thank you for you professional project and technical management from careful planning, to precise execution.
Everyone was initially concerned about the impact to the business and clients - but it was all done so smoothly that we did not receive a single complaint. It was implemented with all the work done quietly behind the scenes.
From all of us, a big thank you and the whole KIPO team for a job truly well done.”
- Qatar Airlines


 
                  
                    
                 
                  
                    
                 
                  
                    
                 
                  
                    
                 
                  
                    
                 
                  
                    
                